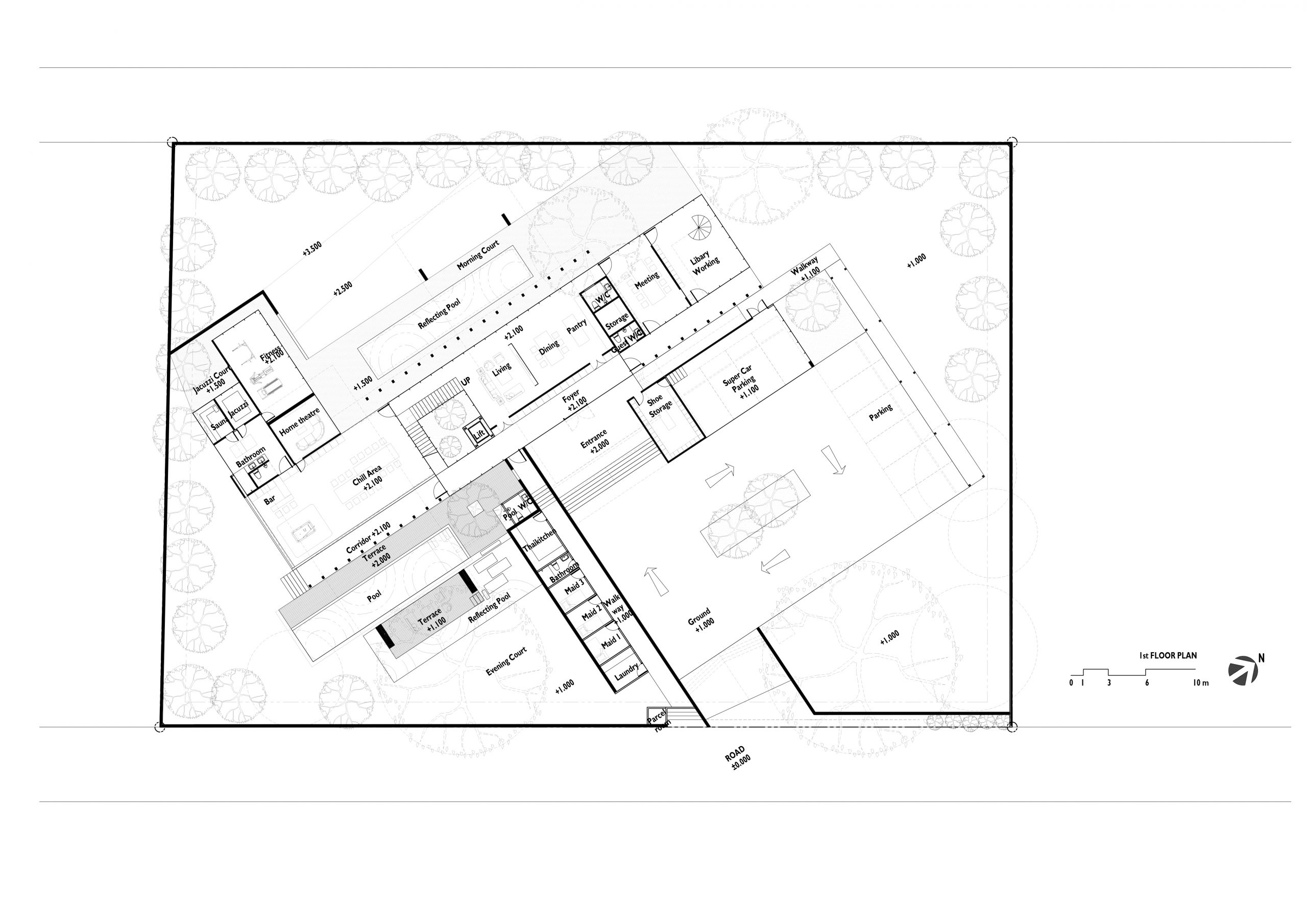
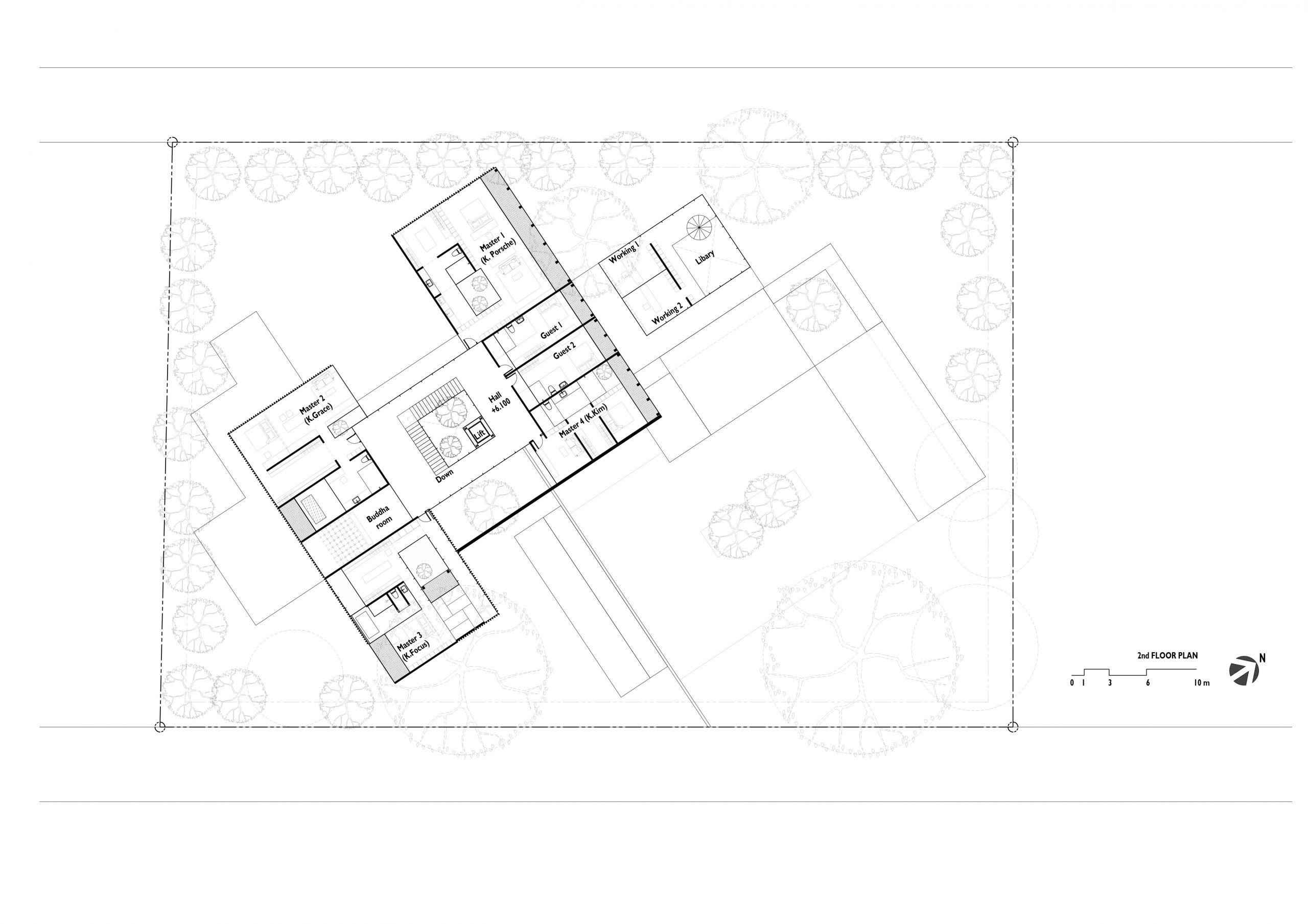
PFG HOUSE
Type: Private Residence
Built Area: 1,000 sq.m.
Project Proposal | โปรเจคที่ออกแบบนำเสนอให้ลูกค้าเห็นภาพรวมและฟังก์ชัน
ถึงแม้ว่าสุดท้ายลูกค้าจะได้ไปต่อ แต่เราก็สนุกกับการออกแบบสุดๆ ถ้าเห็นในแปลนจะเห็นว่าห้องมาสเตอร์แต่ละห้องจะมีคาเรกเตอร์และสไตล์ แตกต่างกันสุดๆ ห้องลูกชายที่มีความญี่ปุ่น มีเสื้อตาตามิ ห้องลูกสาวที่ชอบใช้ชีวิตในห้อง ห้องลูกสาวอีกคนที่อยากมีห้องซาวน่าและจากุสซี่ส่วนตัว ห้องพระที่เหมือนเป็นงานประติมากรรม และอื่นๆ
×
